兵庫県 神戸市中央区磯上通三丁目
エイジングコート三宮
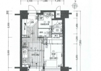
〇専有面積約36.50㎡(約11.04坪) 〇コンシェルジュ、大浴場、レストランあり 〇南向き
基本情報
| 物件名 | エイジングコート三宮 |
|---|---|
| 住居表示 | 〒651-0086 兵庫県 神戸市中央区磯上通三丁目 2番2 |
| 交通機関 | JR神戸線「三ノ宮」駅徒歩9分 阪神本線「神戸三宮」駅徒歩8分 |
売買条件
| 価格 | 1,400万円 |
|---|---|
| 管理費 | 3万2,000円/月 |
| 修繕積立金 | 1万950円/月 |
| 引渡し | 相談 |
| 引渡し指定内容記入欄 | - |
| 駐車場 | - |
| その他諸経費 | - |
土地
| 権利 | 所有権 |
|---|---|
| 土地面積(公簿) | - |
| 土地面積(実測) | - |
| 土地備考欄 | - |
| 建築条件記入欄 | - |
| 敷地権割合 | 394409分の3650 |
| 法令上の制限 | |
| 地役権 | 無 |
| 用途地域 | - |
| ライフライン | 電気:無 売買契約書に、不動産流通4団体作成の反社会的勢力
排除モデル条項を記載することを条件とします。 |
建物
| 建物面積 | - |
|---|---|
| 建築年月 | 1998年1月完成済 |
| 建物状況 | 中古 |
| 構造・階建て | 鉄筋コンクリート造(RC)15階 |
| 総戸数 | 80戸 |
| 駐車場 | 有 |
| 建築確認番号 | - |
| 間取り | 1DK |
| 区分 | 和:5.50畳、DK:6.00畳 |
| 備考欄 | 駐車場:月額 15,000円~17,000円 駐輪場:月額 200円~ エレベーターあり |
部屋情報(区分所有)
| 所在階 | 3階 |
|---|---|
| 専有面積(壁芯) | 36.50㎡ |
| バルコニー(向き) | - |
| 角部屋 | - |
| 専有面積(登記) |
- |
| その他面積 | バルコニー・ベランダ面積:6.84㎡ |
| 管理形態 | 委託(全部) |
| 管理会社 | 株式会社日本ネットワークサービス |
建物設備
| 設備 | 専用浴室(トイレ別) / 専用トイレ(水洗) / 洗面(浴室別) |
|---|
条件関連
| 条件関連 | - |
|---|
この物件を取り扱うオフィス
| オフィス名 | RE/MAX NOW |
|---|---|
| 所在地 |
〒650-0012 兵庫県神戸市中央区北長狭通3丁目12番3号 リーストラクチャートアウエスト401 |
| 連絡先 | TEL:078-335-5401 FAX:078-335-5402 |
| オフィスHP | https://remax-now.jp |
| 企業名 | タン・コンサルティング株式会社 |
| 宅建業免許番号 | 兵庫県知事(4)第11411号 |