京都府 京都市上京区
京都シリーズ ~ 風景をきりとる家
2016年に建てられた本物件は外観はシックな黒に統一されています。中に入ってもシックな雰囲気はそのままにさらにシンプルなデザインになっていて、少し非現実的な空間になっています。部屋には大きな窓がいくつもあり、非常に明るく感じられます。この周辺の風景をまるで大きな額で飾っているような雰囲気の内装になっています。
基本情報
| 物件名 | 京都シリーズ ~ 風景をきりとる家 |
|---|---|
| 住居表示 | 〒6028347 京都府 京都市上京区 四番町 |
| 交通機関 | 京都市営地下鉄東西線「二条」駅徒歩17分 嵯峨野線「二条」駅徒歩20分 市バス「千本出水」駅徒歩5分 |
売買条件
| 価格 | 7,500万円 |
|---|---|
| 引渡し | 相談 |
| 引渡し指定内容記入欄 | ※写真内の動産類は販売価格に含まれません ※売主の契約不適合責任は免責とします ※本物件は現状有姿での取引とします |
| 駐車場 | - |
| その他諸経費 | - |
土地
| 権利 | 所有権 |
|---|---|
| 地番・地目 |
地番: 地目:宅地 |
| 土地面積(公簿) | 65.03㎡ |
| 土地面積(実測) | - |
| 土地状況 | - |
| 土地備考欄 | ◎ 接道状況 : 幅員約4.55mの南側道路に約4.33m接道 ◎ 接道状況 : 幅員約4mの西側道路に約8.79m接道 ◎ 都市計画 : 市街化区域 |
| 建築条件 | - |
| 建築条件記入欄 | - |
| 国土法 | - |
| 建ぺい率 | 60% |
| 容積率 | 200% |
| 容積率の制限があるときその内容 | - |
| 法令上の制限 | |
| 私道負担 | 無 |
| 私道負担面積 | - |
| 地役権 | 無 |
| 用途地域 | 準工業 |
| 前面道路 | - |
| ライフライン | 電気:有 / 都市ガス / 水道:公営 / 下水道:公営 ◎15m第3種高度地区 ◎準防火地域 ◎旧市街地型美観地区 ◎遠景デザイン保全区域 ◎屋外広告物第3種地域 ◎西陣特別工業地区 ◎居住誘導区域◎既成都市区域 ◎物件から徒歩約5分の距離には市バスのバス停があり、京都駅や四条烏丸エリアなど中心部へのおでかけも便利です ◎足を伸ばすと北野天満宮(徒歩約11分・約850m)などの京都の観光地も散歩コースに加える事が出来るのでセカンドハウスにぴったりです |
| 共用施設等の負担金 | - |
建物
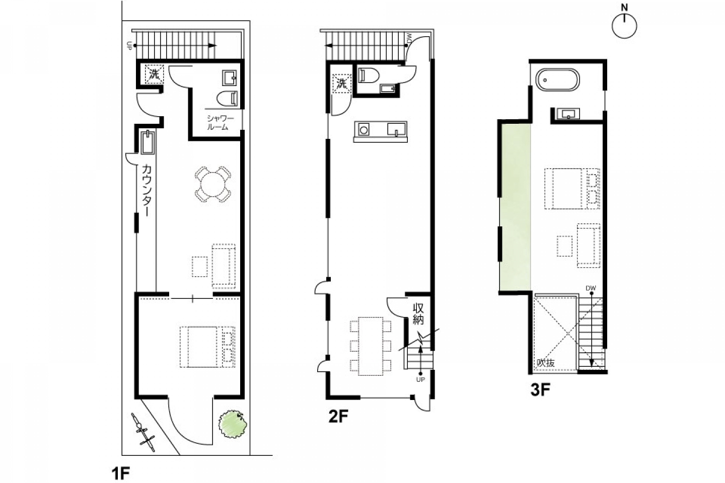
| 建物面積 | 110.15㎡(約33.32坪) |
|---|---|
| 建築年月 | 2016年4月完成済 |
| 建物状況 | 中古 |
| 構造・階建て | 木造(W)3階 |
| 各階の面積 |
1階:40.97㎡、2階:42.12㎡、3階:27.06㎡、合計:110.15㎡(約33.32坪) |
| 総戸数 | - |
| 駐車場 | - |
| 建築確認番号 | - |
| 間取り | 2LDK |
| 区分 | - |
部屋情報(区分所有)
建物設備
| 設備 | - |
|---|
条件関連
この物件を取り扱うオフィス
| オフィス名 | RE/MAX NOW |
|---|---|
| 所在地 |
〒650-0012 兵庫県神戸市中央区北長狭通3丁目12番3号 リーストラクチャートアウエスト401 |
| 連絡先 | TEL:078-335-5401 FAX:078-335-5402 |
| オフィスHP | https://remax-now.jp |
| 企業名 | タン・コンサルティング株式会社 |
| 宅建業免許番号 | 兵庫県知事(4)第11411号 |