京都府 京都市左京区
京都シリーズ ~~ 蹴上インクライン西側・粟田口の宿泊施設
京都・左京区、平安神宮周辺は、東山の自然と古都の歴史が調和する、魅力あふれるエリア。 自然が残る東山の緑を愉しみながら、古都の歴史に触れられる宿泊施設のご紹介です。近隣には古い町家の佇まいをそのまま残した趣あるお店も数多く、平安神宮、南禅寺などの名勝・名所が数多く点在し、日本だけにとどまらず世界から観光客が訪れ大勢の人々で賑わいます。
基本情報
| 物件名 | 京都シリーズ ~~ 蹴上インクライン西側・粟田口の宿泊施設 |
|---|---|
| 住居表示 | 〒6068436 京都府 京都市左京区 粟田口鳥居町21番12 |
| 交通機関 | 京都市営地下鉄東西線「蹴上」駅徒歩4分 京都市バス「蹴上停」駅徒歩3分 |
売買条件
| 価格 | 2億5,000万円 |
|---|---|
| 引渡し | 相談 |
| 引渡し指定内容記入欄 | 宿泊施設運営中 |
| 駐車場 | - |
| その他諸経費 | - |
土地
| 権利 | 所有権 |
|---|---|
| 地番・地目 |
地番: 地目:宅地 |
| 土地面積(公簿) | 73.52㎡ |
| 土地面積(実測) | - |
| 土地状況 | 古家付 |
| 土地備考欄 | 15ⅿ第二種高度地区、旧市街地型美観地区、近景デザイン保全区域、事前協議区域、遠景デザイン保全区域、屋外広告物第三種地域、居住誘導区域、既成都市区域、宅地造成等工事規制区域 |
| 建築条件 | - |
| 建築条件記入欄 | - |
| 国土法 | 不要 |
| 建ぺい率 | 60% |
| 容積率 | 200% |
| 容積率の制限があるときその内容 | - |
| 法令上の制限 | |
| 私道負担 | 無 |
| 私道負担面積 | - |
| 地役権 | 無 |
| 用途地域 | 2種住居 |
| 前面道路 | 方角:北 / 幅員:4.15m / 接道:8.60m 方角:南 / 幅員:2.61m / 接道:8.40m |
| ライフライン | 電気:有 / 都市ガス / 水道:公営 / 下水道:公営 ※セットバック 約6.3m² ※令和5年(2023年)10月改装済/改装箇所:水回り設備全て新調済(キッチン、洗面台、浴室、トイレ)、各部屋の壁・天井クロス張替え、畳新調済、植栽など、2階トイレと浴室を設置済 ※写真内の動産類は販売価格に含まれます ※宿泊施設を運営するには、事業譲渡(名義変更)を受ける必要があります ※本物件は現状有姿での取引とします ※宿運営中につきご希望されている日に見学できない可能性があります。ご承知くださいますようお願いいたします。 |
| 共用施設等の負担金 | - |
建物
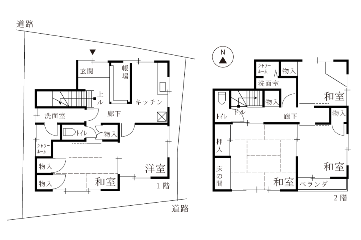
| 建物面積 | 87.79㎡(約26.55坪) |
|---|---|
| 建築年月 | 1982年12月完成済 |
| 建物状況 | 中古 |
| 構造・階建て | 木造(W)2階 |
| 各階の面積 |
1階:42.88㎡、合計:42.88㎡(約12.97坪) |
| 総戸数 | - |
| 駐車場 | - |
| 建築確認番号 | - |
| 間取り | 5K |
| 区分 | - |
部屋情報(区分所有)
建物設備
| 設備 | 専用浴室(トイレ別) / 専用トイレ(水洗) / 洗面(浴室別) / 専用台所 / シャワー:あり / 独立キッチン / キッチン型:II型キッチン / ベランダ / 家具付 / 家電付 |
|---|
条件関連
この物件を取り扱うオフィス
| オフィス名 | RE/MAX NOW |
|---|---|
| 所在地 |
〒650-0012 兵庫県神戸市中央区北長狭通3丁目12番3号 リーストラクチャートアウエスト401 |
| 連絡先 | TEL:078-335-5401 FAX:078-335-5402 |
| オフィスHP | https://remax-now.jp |
| 企業名 | タン・コンサルティング株式会社 |
| 宅建業免許番号 | 兵庫県知事(4)第11411号 |