兵庫県 神戸市兵庫区
神戸~~朝日プラザ湊川【501号室】
2025年10月室内リフォーム済 【交換】キッチン、UB、洗面化粧台、トイレ 等 【張替】全居室クロス、フローリング(LDK・洋室・廊下) 等
基本情報
| 物件名 | 神戸~~朝日プラザ湊川【501号室】 |
|---|---|
| 住居表示 | 〒6520047 兵庫県 神戸市兵庫区 下沢通1丁目1-17 |
| 交通機関 | 神戸市営地下鉄山手線「湊川公園」駅徒歩1分 有馬線「湊川」駅徒歩1分 神戸高速東西線「新開地」駅徒歩4分 |
売買条件
| 価格 | 1,880万円 |
|---|---|
| 管理費 | 1万30円/月 |
| 修繕積立金 | 1万2,940円/月 |
| 引渡し | 即 |
| 引渡し指定内容記入欄 | - |
| 駐車場 | - |
| その他諸経費 | - |
土地
| 権利 | 所有権 |
|---|---|
| 土地面積(公簿) | 769.89㎡ |
| 土地面積(実測) | - |
| 土地備考欄 | - |
| 建築条件記入欄 | - |
| 敷地権割合 | - |
| 法令上の制限 | |
| 地役権 | 無 |
| 用途地域 | 商業 |
| ライフライン | 電気:有 / 都市ガス / 水道:公営 / 下水道:公営 ★南西・南東角住戸 ★2025年10月室内リフォーム済 ★清水建設(株)他施工マンション ★5階部分につき眺望良好 ★穏やかな陽光が差し込むLDK ★浄水器搭載の壁付キッチン ★雨天時のお洗濯に重宝する浴室乾燥機 |
建物
| 建物面積 | 48.18㎡(約14.57坪) |
|---|---|
| 建築年月 | 1985年4月完成済 |
| 建物状況 | 中古 |
| 構造・階建て | 鉄骨鉄筋コンクリート造(SRC)11階 |
| 総戸数 | 118戸 |
| 駐車場 | - |
| 建築確認番号 | - |
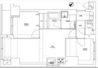
| 間取り | 2LDK |
| 区分 | LDK:12.00畳、洋:4.10畳、洋:4.30畳 |
| 備考欄 | 2沿線以上利用可 / スーパー 徒歩10分以内 / 内装リフォーム / システムキッチン / 浴室乾燥機 / 角住戸 / シャワー付洗面化粧台 / 3面採光 / フローリング張替 / 温水洗浄便座 / 全居室フローリング / 眺望良好 / BS・CS・CATV / 小学校 徒歩10分以内 / エレベーター / 駐輪場 / 浄水器 |
部屋情報(区分所有)
| 所在階 | 5階 |
|---|---|
| 専有面積(壁芯) | 48.18㎡ |
| バルコニー(向き) | - |
| 角部屋 | - |
| 専有面積(登記) |
- |
| その他面積 | バルコニー・ベランダ面積:2.55㎡ |
| 管理形態 | 委託(全部) |
| 管理会社 | - |
建物設備
| 設備 | 専用浴室(トイレ別) / 専用トイレ(水洗) / 洗面(浴室別) / 専用台所 / シャワー:あり / エレベーター:あり / コンロ種別:ガス / コンロ口数:3口 / 室内洗濯機置場有 / オープンキッチン / キッチン型:II型キッチン / バルコニー / クローゼット |
|---|
条件関連
| 条件関連 | 内装リフォーム済 |
|---|
この物件を取り扱うオフィス
| オフィス名 | RE/MAX NOW |
|---|---|
| 所在地 |
〒650-0012 兵庫県神戸市中央区北長狭通3丁目12番3号 リーストラクチャートアウエスト401 |
| 連絡先 | TEL:078-335-5401 FAX:078-335-5402 |
| オフィスHP | https://remax-now.jp |
| 企業名 | タン・コンサルティング株式会社 |
| 宅建業免許番号 | 兵庫県知事(4)第11411号 |