兵庫県 西宮市
ロイヤルシャトー夙川公園【605号室】
★角住戸、最上階・上階なし・眺望良好、南向き、南面バルコニー ★スーパーライフまで徒歩4分 ★スーパー 徒歩10分以内 、市街地が近い、閑静な住宅地
基本情報
| 物件名 | ロイヤルシャトー夙川公園【605号室】 |
|---|---|
| 住居表示 | 〒6620961 兵庫県 西宮市 御茶家所町8-15 |
| 交通機関 | 阪急神戸本線「夙川」駅徒歩7分 JR神戸線「さくら夙川」駅徒歩7分 阪神本線「香櫨園」駅徒歩8分 |
売買条件
| 価格 | 4,780万円 |
|---|---|
| 管理費 | 1万4,210円/月 |
| 修繕積立金 | 2万2,955円/月 |
| 引渡し | 即 |
| 引渡し指定内容記入欄 | - |
| 駐車場 | - |
| その他諸経費 | - |
土地
| 権利 | 所有権 |
|---|---|
| 土地面積(公簿) | - |
| 土地面積(実測) | - |
| 土地備考欄 | - |
| 建築条件記入欄 | - |
| 敷地権割合 | - |
| 法令上の制限 | |
| 地役権 | 無 |
| 用途地域 | 近隣商業 |
| ライフライン | 電気:有 / 都市ガス / 水道:公営 / 下水道:公営 ★2026年1月末リフォーム工事完了 ★3沿線利用できます ★浴室乾燥機、水洗浄便座、浴室に窓、シャワー付洗面化粧台 ★対面式キッチン、ワイドバルコニー 、フローリング張替、TVモニタ付インターホン、宅配ボックス、食器洗乾燥機 |
建物
| 建物面積 | 71.07㎡(約21.49坪) |
|---|---|
| 建築年月 | 1996年3月完成済 |
| 建物状況 | 中古 |
| 構造・階建て | 鉄筋コンクリート造(RC)6階 |
| 総戸数 | 29戸 |
| 駐車場 | 有 |
| 建築確認番号 | - |
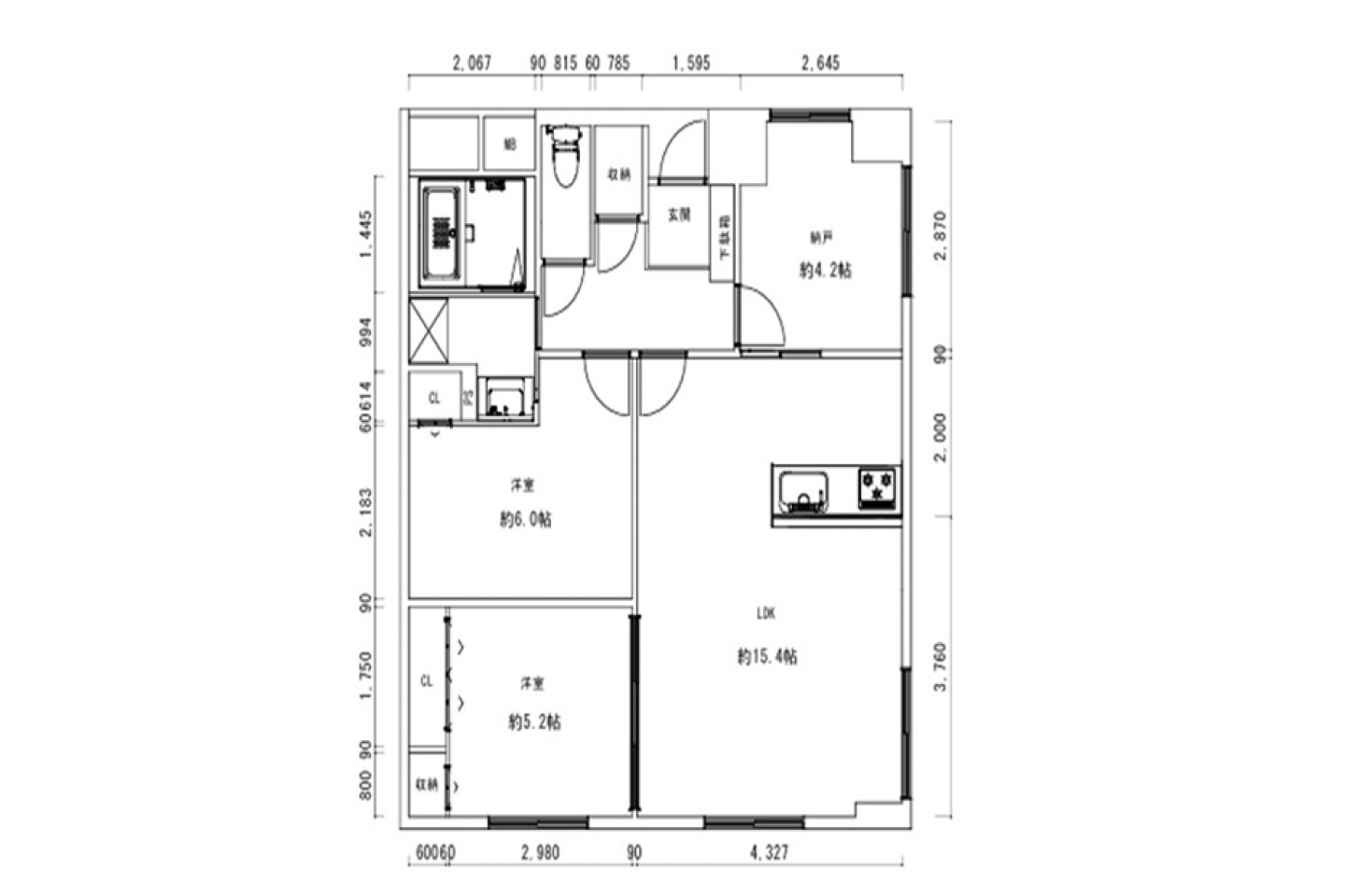
| 間取り | 3LDK |
| 区分 | LDK:15.40畳、洋:5.20畳、洋:6.00畳、S:4.20畳 |
部屋情報(区分所有)
| 所在階 | 6階 |
|---|---|
| 専有面積(壁芯) | 71.07㎡ |
| バルコニー(向き) | - |
| 角部屋 | - |
| 専有面積(登記) |
- |
| その他面積 | バルコニー・ベランダ面積:30.03㎡ |
| 管理形態 | 委託(常駐) |
| 管理会社 | 大和ライフネクスト㈱ |
建物設備
| 設備 | 専用浴室(トイレ別) / 専用トイレ(水洗) / 洗面(浴室別) / 専用台所 / シャワー:あり / エレベーター:あり / コンロ種別:ガス / コンロ口数:3口 / 室内洗濯機置場有 / TVインターホン / 対面キッチン / キッチン型:II型キッチン / バルコニー / クローゼット2か所 |
|---|
条件関連
| 条件関連 | 内装リフォーム済 |
|---|
この物件を取り扱うオフィス
| オフィス名 | RE/MAX NOW |
|---|---|
| 所在地 |
〒650-0012 兵庫県神戸市中央区北長狭通3丁目12番3号 リーストラクチャートアウエスト401 |
| 連絡先 | TEL:078-335-5401 FAX:078-335-5402 |
| オフィスHP | https://remax-now.jp |
| 企業名 | タン・コンサルティング株式会社 |
| 宅建業免許番号 | 兵庫県知事(4)第11411号 |