検索結果:
- 賃貸
- 近畿
- 店舗事務所
- 鶴見区ガレージハウス
- 1、2階 1LDK
大阪府 大阪市鶴見区
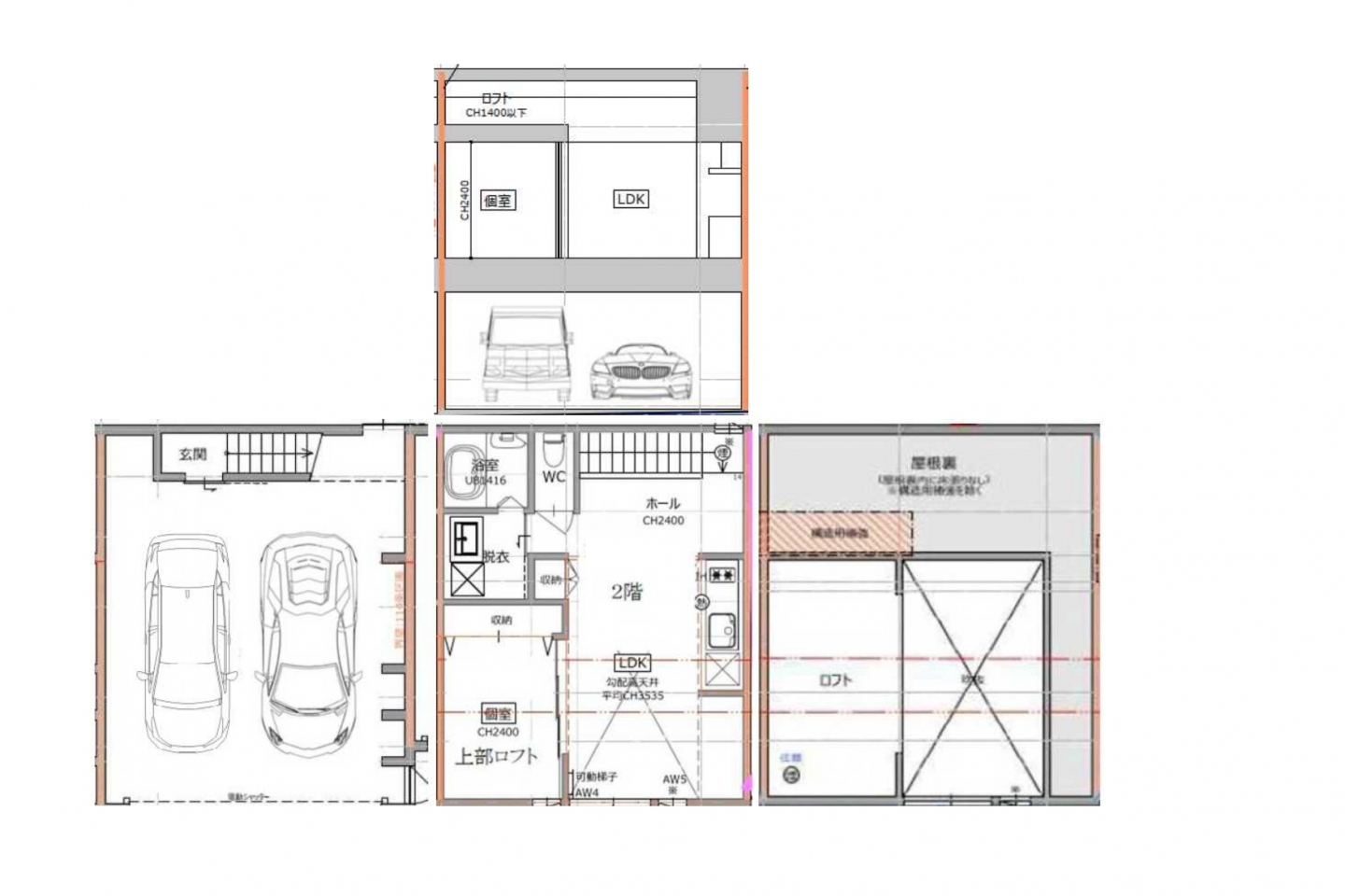
鶴見区ガレージハウス
基本情報
| 物件名称 | 鶴見区ガレージハウス |
|---|---|
| 所在 | 〒538-0042 大阪府大阪市鶴見区今津中1-3-19 |
部屋情報
| 所在階 | 1、2階 |
|---|---|
| 専有面積 | 91.50㎡(約27.67坪) |
| 使用用途 | 事業 |
| 状況 | 空き室 |
間取り
| 間取り区分 | 1LDK |
|---|
募集条件
| 賃料 | 288,000円 |
|---|---|
| 共益費 | 10,000円 |
駐車場
| 駐車場 |
|
|---|
この物件を取り扱うオフィス
| オフィス名 | RE/MAX MODEST |
|---|---|
| 所在地 |
〒536-0015 大阪府大阪市城東区新喜多二丁目5番34号 |
| 連絡先 | TEL:06-4400-7341 FAX:06-4400-7343 |
| オフィスHP | http://remax-modest.com/ |
| 企業名 | 小浜木材工業株式会社 |
| 宅建業免許番号 | 大阪府知事(6)第46699号 |