滋賀県 大津市
大津市尾花川戸建
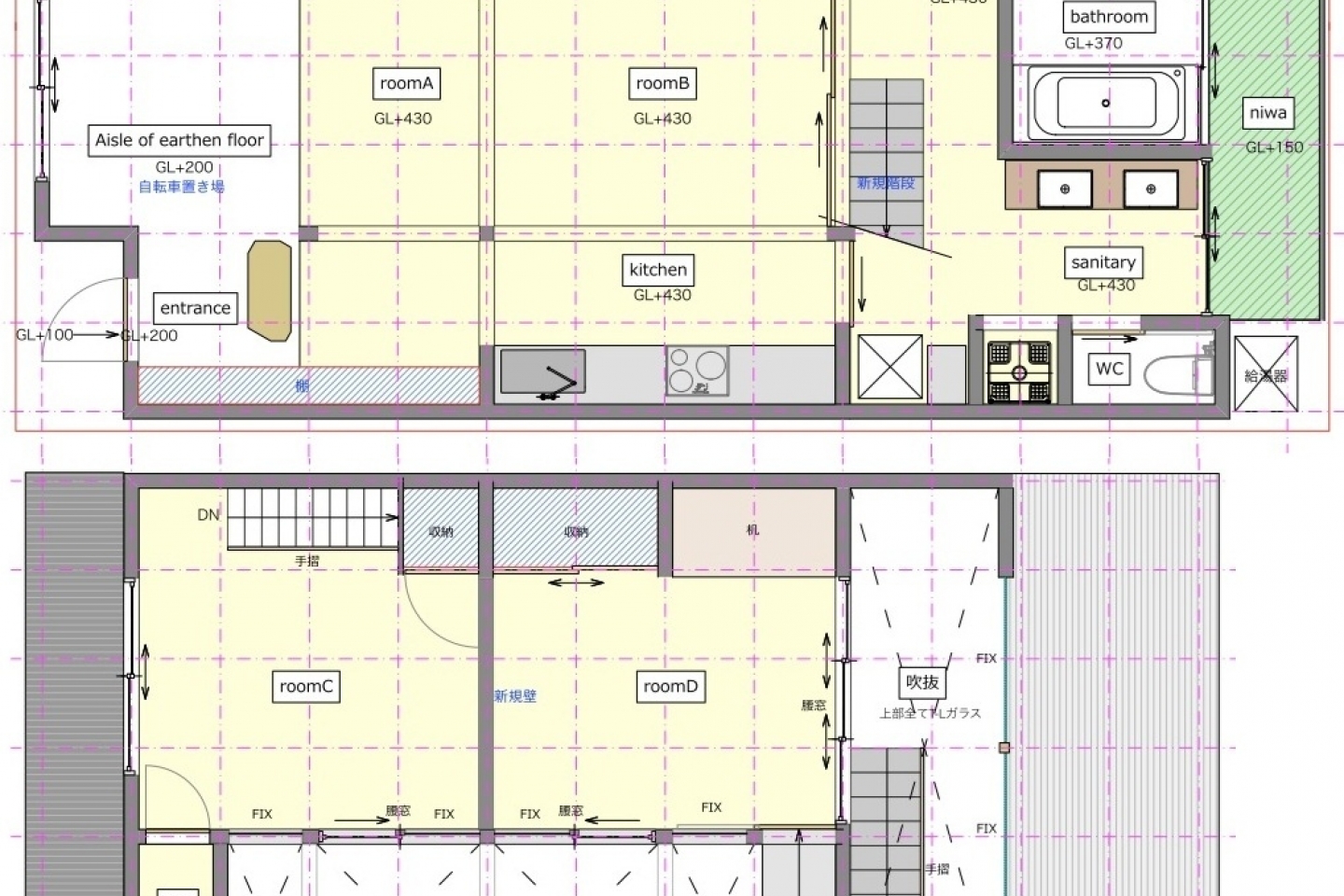
全改装済みの連棟戸建。再建築可物件です。
基本情報
| 物件名 | 大津市尾花川戸建 |
|---|---|
| 住居表示 | 〒5200031 滋賀県 大津市 尾花川9-18 |
| 交通機関 | JR湖西線「大津京」駅徒歩9分 京阪石山坂本線「京阪大津京」駅徒歩9分 |
売買条件
| 価格 | 3,280万円 |
|---|---|
| 引渡し | 即 |
| 引渡し指定内容記入欄 | - |
| 駐車場 | 近郊 6,000円 距離20.00m |
| その他諸経費 | - |
土地
| 権利 | 所有権 |
|---|---|
| 地番・地目 |
地番:9-18 地目:宅地 |
| 土地面積(公簿) | 73.98㎡ |
| 土地面積(実測) | - |
| 土地状況 | - |
| 土地備考欄 | - |
| 建築条件 | - |
| 建築条件記入欄 | - |
| 国土法 | - |
| 建ぺい率 | 60% |
| 容積率 | 200% |
| 容積率の制限があるときその内容 | - |
| 法令上の制限 | |
| 私道負担 | 無 |
| 私道負担面積 | - |
| 地役権 | 無 |
| 用途地域 | 2種中高 |
| 前面道路 | 方角:北 / 幅員:2.30m / 種別:42条2項 後退必要 / 接道:5.60m |
| ライフライン | 電気:有 / 都市ガス / 水道:公営 / 下水道:公営 |
| 共用施設等の負担金 | - |
建物
| 建物面積 | 91.53㎡(約27.68坪) |
|---|---|
| 建築年月 | 1950年1月完成済 |
| 建物状況 | 中古 |
| 構造・階建て | 木造(W)2階 |
| 各階の面積 |
- |
| 総戸数 | 1戸 |
| 駐車場 | 無 |
| 建築確認番号 | - |
| 間取り | 2LDK |
| 区分 | - |
部屋情報(区分所有)
建物設備
| 設備 | 専用浴室(トイレ別) / 専用トイレ(水洗) / 洗面(浴室別) / 専用台所 / 給湯(ガス) / シャワー:あり / エアコン:冷暖房 / エレベーター:なし / コンロ種別:ガス / コンロ口数:3口 / 室内洗濯機置場有 / TVインターホン / 独立キッチン / キッチン型:II型キッチン / 庭 / 2面採光 / 鍵:ディンプルキー / クローゼット3か所以上 / エアコン台数:エアコン3台 |
|---|
条件関連
この物件を取り扱うオフィス
| オフィス名 | RE/MAX BASE |
|---|---|
| 所在地 |
〒600-8173 京都府京都府京都市下京区仏具屋町175番地2 |
| 連絡先 | TEL:075-744-6704 FAX:075-744-6734 |
| オフィスHP | https://remax-base.com/ |
| 企業名 | 株式会社アローズベース |
| 宅建業免許番号 | 京都府知事(1)第14981号 |